Skip to main content
Toggle navigation
Birkby Construction Ltd
Lees Road Laddingford Maidstone
Kent ME18 6BU
Tel : 01622 871400
Main navigation
Home
About Us
Our Team
Our Projects
House Building Projects
Commercial Building Projects
Public Works Construction
Housing Developments
Small Works & Maintenance
Work in Progress
News
Contact Us
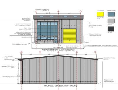
Construction of New Industrial Unit, Croydon
Projects
Works in Progress
Construction of New Industrial Unit, Croydon