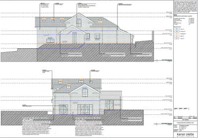
Extension & Full Renovation of Existing Dwelling in Tunbridge Wells creating 6 Bedrooms, 3 Bathrooms & External Works

Projects
Project Value
£800,000

Extension & Full Renovation of Existing Dwelling in Tunbridge Wells creating 6 Bedrooms, 3 Bathrooms & External Works

1
2
3
4
5
6
7
8
9
10
11
12
13
14
15
16
N
M
L
K
J
I
H
G
F
E
D
C
B
A